Здравствуйте, уважаемые коллеги!Данные группы статей подготовлены специально для тех, кто еще не сталкивался с системой KNX.
Они будут полезны для начинающих интеграторов, архитекторов, электриков и конечно потенциальных владельцев данных систем. Далее будут рассмотрены технические задания для поэтапного проектирования системы автоматизации на базе шины KNX.
Далее будут рассмотрены примеры автоматизации офиса, квартиры и гостиничного номера.
Главная цель данных статей:
- Познакомить с системой KNX пользователей
- Рассмотреть примеры расстановки оборудования, схемы разводки кабеля, примеры использования KNX на различных объектах
- Познакомить с базовым оборудованием KNX вендора JUNG.
KNX- коммуникационная шины, широко используемая в мире для автоматизации зданий.
Главным преимуществом шины является децентрализованность системы, что позволяет сохранить отказоустойчивость всего проекта даже при отказе того или иного устройства на шине.
Существует 4 среды передачи данных:
1.TP (Twisted pair) витая пара – выделенный кабель со скоростью передачи данных 9600 бит/с
2.IP (Internet protocol) – Ethernet
3.RF радиоканал – для обмена данными используются частоты 868,0 — 870,0 МГц. На данный момент оборудование использующие данный протокол официально не поставляются на территорию РФ.
4.PL силовая линия — скорость передачи 1200 бит/с, 230в, 50Гц. В настоящие время технология неактуальна!
Из этого следует что все проекты KNX основаны на использовании “витой пары”. Для шины рекомендуется использовать фирменный кабель 2х2х0,8. Для работы KNX достаточно одной пары кабелей. Вторая пара может использоваться как резерв, а также для дополнительного питания некоторых блоков если это требуется.Устройства автоматизации, работающие на KNX протоколе, делятся на 2 типа:
1.Исполнительное устройство (актуатор, диммер, блок сопряжения и т.д.)
2.Сенсор (клавиши, всевозможные датчики, панели управления)
Сенсоры и исполнительные устройства взаимодействуют между собой с помощью слаботочного кабеля, и здесь мы получаем второе важное преимущество – вся система слаботочная.
Система KNX независимо от производителя будет совместима. Исполнительные устройства могут быть одного бренда, датчики второго, а выключатели третьего, при этом система будет корректно работать и отвечать всем требованиям.
Групповые адреса и телеграммы в KNX
Информация, которая должна передаваться от датчика (отправителем команд) к одному или нескольким исполнительным устройствам упаковывается в телеграмму. В ней заложена информация о том, кто передает информацию, кому она предназначена и команда включить/выключить или убавить/добавить мощность или любая другая. При успешной передаче и приеме телеграммы устройство получившие её подтверждает получение. При отсутствии команды подтверждения передача повторяется еще три раза.
Важным логическими элементами системы являются групповые адреса. Адреса присваиваются схожим по функционалу и признаку устройства. Например, проходной выключатель, т.е. две клавиши разных выключателей и один канал реле. Каждой клавише на обоих выключателях будет присвоен один групповой адрес. Это значит, что люба из этих клавиш будет отправлять одинаковую телеграмму в линию KNX, а реле, которому будет присвоен такой-же групповой адрес сможет получать данные из линии.
Стоит отметить, что датчики/клавиши могут отправлять только один групповой адрес, а исполнительные устройства реле/диммеры могут принимать данные сразу с нескольких групповых адресов.
Важный момент для понимания системы, все устройства, объединенные групповыми адресами, должны иметь общие типы данных. Например, клавиша Вкл/Выкл отправляющая в шину бинарный сигнал не сможет передать диммеру информацию о регулировки яркости. При этом, тот же диммер может принимать и отдавать несколько различных типов данных: Вкл/Выкл, увеличить/уменьшить мощность, сохранить заданную яркость и т.д.
Топология

Топология проводной шины может быть выбрана достаточно гибко. Допускается использование линейных шин, звезд и дерева.
Самым простым инсталляционным звеном системы KNX является сегмент линии, объединяющий максимум 64 шинных устройства. Окончательное число шинных устройств в сегменте зависит от установленного блока питания и энергопотребления каждого устройства.
Общие шинные характеристики выглядят так:
• Максимальная длина сегмента линии — 1000 м
• Максимальное расстояние между блоком питания и шинным устройством — 350 м
• Минимальное расстояние между двумя блоками питания — уточняется у производителя •Максимальное расстояние между двумя шинными устройствами — 700 м
Область
В KNX существует такое понятие как область. К главной линии (Main line) с помощью линейных соединителей̆ (Line coupler / LC) могут быть подключены до 15 линий и объединены в одну область. К главной̆ линии так же можно подключить до 64 шинных устройств. Важный момент — главная линия должна иметь собственный блок питания.

Несколько областей̆
В KNX системе можно объединить несколько областей при помощи магистральной линии (Backbone line). При этом каждая область подключается к магистральной линии через обязательный̆ магистральный соединитель (Backbone coupler / BC). Магистральная линия должна иметь отдельный̆ блок питания. К магистральной линии возможно подключение шинных устройств. Максимальное число подключенных шинных устройств сокращается с увеличением числа магистральных соединителей. Магистральная линия может соединять максимум 15 областей. Таким образом у нас получается, что в одну систему, может быть, добавлено 58 000 шинных устройств.

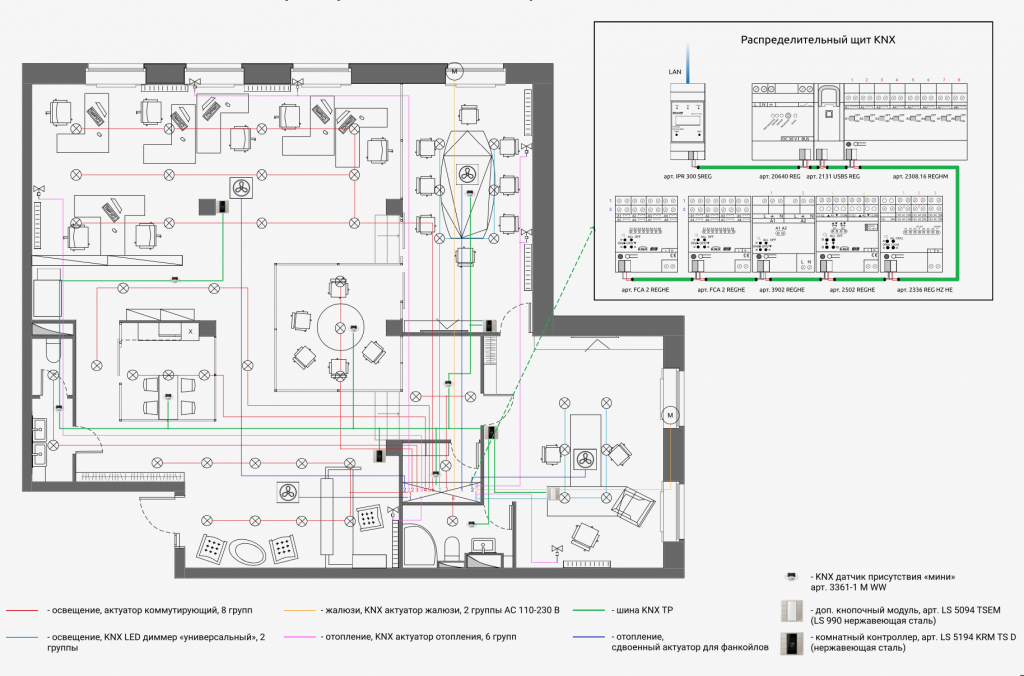
Пример реализации офисного помещения

В систему автоматического управления офисом входят следующие задачи:
- Управление несколькими группами света, в том числе диммирование
- Управление климатом с помощью радиаторов
- а также управление фанкойлами
Обязательный перечень устройств для построения простого KNX проекта на примере оборудования JUNG
Для обеспечения бесперебойной работы шины KNX в первую очередь понадобится блок питания арт. 20640 REG. ПО усредненным данным каждое устройство KNX потребляют 10 мА, но в любом случае лучше уточнить в инструкции от производителя. Для данного проекта выбран блок питания на 640 мА, так как его хватает для данной системы.
Требования к организации линии:
- Максимальное расстояние от блока питания до самого дальнего элемента 350 метров
- Питание линии можно осуществлять с двух блоков питания, но это должно быть прописано в их инструкции. Не все блоки могут работать в паре.
- Установка на Din-рейку
- Дополнительный выход питания постоянного тока на 30В для питания приборов.арт. 20640 REG

2)Ip роутер KNX арт. IPR 300 SREG предназначен для соединения системы KNX c компьютерами а так-же другими линиями через IP-сеть.
Он также устанавливается на Din- рейку
арт. IPR 300 SREG

3)USB-интерфейс арт. 2131 USBS REG необходим для подключения ПК инсталлятора к системе KNX
Устанавливается в щит на din-рейку
Необходим для назначения адресов, настройки приборов и диагностики работы шины.
арт. 2131 USBS REG

Освещение
Актуатор коммутирующий, 8 групп арт. 2308.16 REGHM
Предназначен для: Переключение электропотребителей с напряжением 230 В переменного тока, и 24 В переменного/постоянного тока.
Устанавливается на Din-рейку или в распределительную коробку.
Характеристики актуатора:
- Программируемый режим нормально открытых/закрытых контактов
- Переключение вручную реле независимо от изначального состояния
- Принудительная коммутация
- Функция блокировки
- Дополнительное питание не требуется
- Присутствует счетчик рабочих часов

Диммируемое освещение
Универсальный Led- диммер на 2 группы арт. 3902 REGHEПредназначен для: включения и диммирование всевозможных потребителей (лампы накаливания, галогеновые лампы высокого напряжения, регулируемые светодиодные лампы, компактные люминесцентные лампы, для управления индуктивных и электронных трансформаторов с галогеновыми и светодиодными лампами низкого напряжения)
Устанавливается на DIN-рейку в шкафу
Характеристики диммера:
- Автоматическая и ручная настройка блока диммирование в зависимости от необходимого принципа диммирования
- Сообщение об ошибке при коротком замыкании
- Возможность ручного переключения каждого вывода
- Настройка параметров Вкл/Выкл и и регулировки яркости света
- Отправление обратной связи в шину о состоянии коммутационного узла и параметра диммера.

Жалюзи
KNX актуатор для управления 2-х групп жалюзи. арт. 2502 REGHE
Назначение актуатора:
Управление электрическими шторами и рулонными жалюзи, маркизами и схожих видов занавесами с управлением через 230 V переменного тока и 12…48 V постоянного тока.
Устанавливается в щите.
Характеристики:
- Подходит для моторов переменного тока 230 V постоянного тока 12…48 V
- Для двигателей с управлением через переключение фаз не имеющих обратной связи можно настроить таймер, который будет определять время движения
- Обратная связь о местоположении шторы (жалюзи и т.д.)
- Сценарное управление
- Солнцезащитная функция
- Принудительное установка виртуальных концевиков

Отопление
KNX актуатор управления 6-ю группами отопления, арт. 2336 REG HZ HE
Назначение:
Управление нагрузками климатической техники
Установка на DIN-рейку в щите
Характеристики:
- Сервоприводами можно управлять с помощью параметра «открыто при отсутствии тока» или «закрыто при отсутствии тока»
- Режим переключения или режим ШИМ
- Подходят любые сервоприводы 230 В или 24 В
- Защита от перегрузок и коротких замыканий; светодиодная индикация ошибок
- Защита от заклинивания клапанов
- Принудительная уставка
- Возможность задания параметров циклического контроля входных сигналов

Климат-контроль
Сдвоенный актуатор для фанкойлов арт. FCA 2 REGHE
Назначение:
- Переключение электрических фанкойлов
- Переключение электрических нагрузок
- Устанавливается в щите
Характеристики:
- Подключение 1-го фанкойла со скоростью вращения вентилятора до 6 скоростей или подключение 2-х фанкойлов со скоростью вращения вентилятора до 3 скоростей соответственно
- Режимы нагрева, охлаждения или комбинированные операции нагрева / охлаждения
- Работа с 2 или 4 трубами
- Функция блокировки для каждого канала

Варианты оконечных устройств в KNX на основе данного проекта


Кнопочные модули
В линейке JUNG представлено два варианта дизайна кнопочных модулей: F40 и F50
Оба варианта могут быть выполнены в сериях «A», «CD» и «LS». В модулях максимальное колличество клавиш равно 8. Есть возможность подключить дополнительный кнопочный модуль в обеих линейках. Применяются для управления потребителями, например включение/выключение света, диммирование света, поднятие/опускание жалюзи, значение температуры, вызов и сохранение сценариев и т.п. В рассмотренных вариантах имеются встроенные датчики температуры.
Датчики движения и присутствия
Что касается датчиков движения для KNX, то у JUNG представлено 2 варианта: с рекомендованной высотой установки 1,1 м или 2,2 м. Для подключения датчиков в систему KNX необходимо шинное сопряжение арт. 2073U. Оба варианта могут быть выполнены в сериях «A», «CD» и «LS». Применяются для управления освещением и другими энергопотребителями по заданным параметрам. Монтаж настенный, контролируемая зона 180°. Возможна ручная настройка чуствительности.
С помощью датчика присутствия можно управлять освещенностью, термостатами во внутренних помещениях и прочими потребителями электроэнергии. Монтаж осуществляется на зажимах в подвесных потолках. Угол обзора 360°. Работает как датчик движения, датчик присутствия и сигнализация. Возможна ручная настройка чувствительности.
Кнопкас BCU/F10
Выглядит как обычый выключатель, но в механизм встроен BCU (Bus coupling unit).
Применяется для управления потребителями, например, включение/выключение света, диммирование, поднятие/опускание жалюзи, значения яркости, температуры, вызов и сохранение световых сцен и т.п. Максимальное колличество клавиш — 2. Встроенный датчик температуры.
Роторный сенсор
Оконечное сенсорное устройство, используемое для управления потребляющими приборами, например, включение/выключение света, диммирование , поднятие/опускание жалюзи, значения яркости, температуры, вызов и сохранение светвых сцен и т.п. Управляется вращением или нажатием поворотной кнопки
Бинарный ввод
Встраивается в подрозетник, бывает 2-х и 4-х канальный. В данном примере можно выбрать любой из выключателей. Важным замечанием здесь является то, что механизм выключателя должен являться кнопкой без фиксации (звонкового типа). Применяется для управления потребителями, например, включение-выключение света, диммирование света, поднятие/опускание жалюзи, значения яркости, температуры, вызов и сохранение световых сцен и т.п.
Визуализация и удаленное управление
Современные технологии KNX демонстрируют свои преимущества даже в повседневном использовании. Пульты управления позволяют в любой̆ момент получить доступ ко всем помещениям, функциям и сценариям, а также с лёгкостью управлять ими. Даже находясь далеко от дома, можно осуществлять мониторинг и управление «умным домом» через смартфон или планшет. Для примера показан сервер визуализации «Smart Visu Server»

Пример реализации с помощью мультистанции
Для небольших автоматизаций можно использовать многофункциональные устройства.
Для нашей автоматизации можно использовать так называемую «мультистанцию», которая есть в каталоге JUNG. Один блок мультистанции имеет на борту 6 реле, которые могут быть использованы для управления шторами или жалюзи, а также для управления термоголовками.
К данному блоку можно подключить 2 датчика теплого пола для управления двумя независимыми контурами (функции терморегулятора заложены внутри блока).

Назначение блока:
- Управление электрическими потребителями
- Переключение электрических жалюзи, рольставней, маркиз и т.д.
- Управление электронагревательными приводами
- Опрос шины KNX для сбора обратной связи с выключателей, различных датчиков для индикации состояний, а также показаний счетчиков.
- Логические функции для управления системами дома
Устанавливается в щите
Характеристики:
- Возможность задать каждому реле функции: переключение, жалюзи, термоприводов
- Функцию привода можно переключать попарно — Встроенный кнопочный интерфейс с 6 входами — 2 встроенных регулятора температуры
- 2 входа для датчиков температуры
- Возможность ручного управления выходами
- Обратная связь при ручном управлении и шинном режиме
- Функции сцены
- Блокирование отдельных выходов вручную или по шине

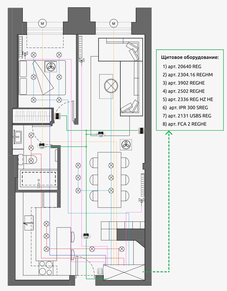
Пример автоматизации квартиры на базе шины KNX

- освещение, актуатор коммутирующий, 4 группы
- освещение, KNX LED диммер «универсальный», 2 группы
- KNX датчик присутствия «мини» арт. 3361-1 M WW
- жалюзи, KNX актуатор жалюзи, 2 группы AC 110-230 В
- отопление, KNX актуатор отопления, 6 групп
- кнопочный модуль, арт. LS 5094 TSM (LS 990 нержавеющая сталь)
- комнатный контроллер, арт. LS 5194 KRM TS D (нержавеющая сталь)
План размещения KNX в гостиничном номере

- освещение, актуатор коммутирующий, 4 группы
- освещение, KNX LED диммер «универсальный», 1 группа
- кнопочный модуль, арт. LS 5094 TSM (LS 990 нержавеющая сталь)
- жалюзи, KNX актуатор жалюзи, 2 группы AC 110-230 В
- отопление, сдвоенный фанкойл актуатор
- комнатный контроллер, арт. LS 5194 KRM TS D (нержавеющая сталь)


