Квартира на Савушкина
Информация об объекте
Квартира в многоэтажном жилом доме по ул.Савушкина площадью 110 кв.м. Требования заказчика предусматривали использование беспроводных решений и предельную простоту управления. Основой создаваемой системы «Умный дом» стали средства автоматизации компаний Noolite и Fibaro. Еще до обращения в компанию заказчиком в квартире проведены электромонтажные работы.Установленные системы:
- Бесшовный Wi-Fi
- Управление освещением
- Умные радиаторы
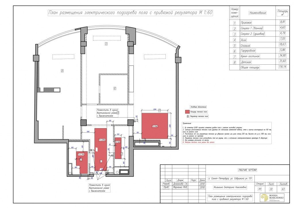
- Управление теплыми полами
- Система вентиляции
- Голосовое управление
Проектирование
Основным дизайнерским решением при формировании системы стал минимализм. Перед проектировщиками стояла цель установить все необходимые элементы, сделав их максимально незаметными для окружающих.
В рамках реализации проекта потребовалось создание отдельных подсистем, призванных обеспечить управление отоплением в доме и теплыми полами. Создан план освещения с указанием мест расположения источников света и средств управления ими (выключатели).

Установка оборудования
В процессе управления был создан бесшовный Wi-Fi, мультирум, система фонового музыкального сопровождения, обеспечивающей качественное звучание в любом из помещений квартиры. Используемые средства управления позволяют изменять настройки музыки, как в жилище в целом, так и в отдельных комнатах. За счет интеграции системы с датчиками движения реализован принцип следования музыкального сопровождения за человеком.

Освещение
Система освещения базируется на наборе заранее определяемых сценариев. Их активация возможна через управляющие панели, выключатели или установленное на смартфон/планшет приложение.
Посредством iPad есть возможность управлять элементами освещения, приводами штор, сплит-системами, положением оконных створок и другими системами, входящими в состав «Умного дома». При этом пользователь может находиться в любой точке мира, имея только доступ к мобильному интернету.
Климат-контроль
От пользователя требуется только задать желаемую температуру, после чего автоматика будет поддерживать ее на должном уровне. Для системы предусматривается наличие режимов «Лето» и «Зима». В первом случае оборудование работает на охлаждение, а во втором на отопление помещений квартиры.
Фото выполненного объекта














