Квартира в Москве с большой террасой
По числу желающих иметь умный дом Москва уверенно занимает лидирующее положение в России. Очередной подобный проект был реализован в Ясенево, в просторной 3-комнатной квартире площадью 138 кв.метров, имеющей большую террасу. При реализации проекта был использован Larnitech умный дом со стандартным набором оборудования, в частности датчиков света и движения, управляющих освещением.
- Освещение
- Климат-контроль
- Электрокарнизы
- Системы защиты от протечек
- Вытяжные вентиляторы
- Бесшовный Wi-Fi и локальная сеть
- Системы видеонаблюдения
Проектирование


В процессе создания проекта основное внимание было уделено разработке системы освещения на базе требований идеального соответствия нормам освещенности в помещениях. На их основе, как выбирались места установки осветительных приборов, так и их тип.
Освещение
Вместе с развернутой системой управления освещением, включая уровень яркости, было установлено несколько сценариев действий, например, освещение в ванной комнате в ночные часы включается на 10% яркости, чтобы не слепить владельцев квартиры.
Климат-контроль
Система кондиционирования в умном доме предусматривает объединение всех элементов. Теплый пол, вентиляция, конвекторы отопления, кондиционеры и увлажнители соединены в единый контур, управляемый автоматически в соответствии с задаваемыми параметрами. Дистанционное управление кондиционером и другими элементами предусматривается со смартфона владельцев.
Безопасность
За безопасность отвечает охранная сигнализация и набор видеокамер купольного типа с высоким уровнем разрешения. Информация с них поступает в облачное хранилище для временного хранения. Доступ к нему имеют только владельцы квартиры.
Защита от протечек
Водопровод и система отопления оснащены датчиками контроля протечек, позволяющими оперативно перекрыть воду в случае разгерметизации контура.
Контроллер VIMAR имеет клавишное управление, в качестве опции возможен заказ моделей с дисплеем. Под его управлением находится система кондиционирования, освещение и приводы управления шторами. Дополнительно предусмотрено наличие датчика, контролирующего качественные параметры воздуха.
За счет многообразия цветовой палитры корпуса выключателей и материалов их изготовления удалось подобрать вариант, оптимально отвечающий интерьеру помещения.
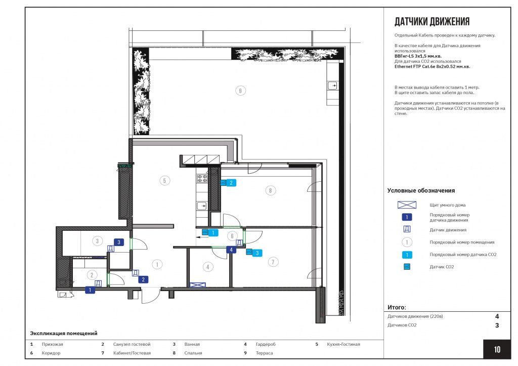
Датчики
Используемые датчики позволяют определять наличие в помещении человека, уровень естественной освещенности, выдавая соответствующие команды на исполнительные устройства. Аналогичным образом система климат-контроля получает информацию от датчиков для активации соответствующих сценариев.
Сенсорное управление
Для решений умный дом Москва предъявляет наиболее строгие требования по качеству. Поэтому установленная специалистами док-станция обеспечивает поддержку iPad, имея привлекательный внешний вид и многообразие цветов выбора. Интерфейс сервиса представлен фирменным приложением Apple HomeKit, одним из наиболее совершенных на сегодня решений.
Щитовое оборудование
Для реализации проекта использовалось качественное немецкое оборудование. С компанией Larnitech умный дом получает необходимую надежность и безопасность.

Фото выполненного объекта














