Умный дом в Квартире в ЖК «ROYAL PARK»
Объектом установки «умного дома» выступила просторная квартира в Санкт-Петербурге общей площадью 120 кв. метров. При выполнении заказа был реализован принцип единого пространства в соответствии с пристрастиями владельца.
Установленные системы:
- Элементы управления освещением;
- Кондиционирование;
- Вентиляция;
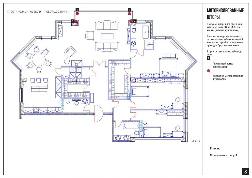
- Управление шторами;
- Покрытие Wi-Fi (бесшовное);
- Мультимедиа;
- Датчики протечки;
- Система видеонаблюдения.
В процессе оказания услуги был составлен проект, подобрано и приобретено оборудование, проведен его монтаж, сборка электрощитов, пусконаладочные работы, программная настройка, проведено сервисное обслуживание.
Проектирование
К началу выполнения работ по обустройству «умного дома» электромонтаж в квартире был частично выполнен, поэтому было принято решение выбрать оборудование с беспроводным подключением с использованием популярного протокола Z-wave.


Была предусмотрена расстановка модулей теплых полов, разработана схема размещения универсальных датчиков.
Электрический щит
В основе всего проекта лежит качество сборки электрощита и слаботочной стойки. При подборе оборудования для них и последующей установке были задействованы наиболее надежные и эффективные решения, привлечены лучшие специалисты.


Установка оборудования
В соответствии с ранее разработанным проектом специалистами проведена укладка необходимых кабелей, включая слаботочные, смонтирован щит, исполнительные устройства. С учетом выбора беспроводных технологий передачи данных, часть технических средств помещена внутрь подрозетников.
В соответствии с требованиями заказчика в квартире появилась система видеонаблюдения. При выполнении работ выбор был сделан в пользу оборудования WirenBoard и отечественного Defaro.


Пусконаладка
Управление «умным домом» сосредоточено в приложении «Дом» сервиса HomeKit от корпорации Apple.
Выключатели серии Unica Schneider Electric подбирались в соответствии с интерьером помещений, они предусматривают работу с несколькими сценариями, соединяя в единый контур освещение, кондиционирование, вентиляцию, управление шторами и так далее.
Удобство управления достигается за счет колонки Алиса, позволяющей отдавать команды голосом.


Сценарии
Климат-контроль: Система вентиляции, кондиционеры, а также теплые полы выступают как единое целое, поддерживая необходимую температуру, влажность, и уровень углекислого газа.
Безопасность: при включении сценария «Никого нет дома», датчик движения установленный в коридоре встает в режим охраны, и начинает присылать уведомления хозяевам если произошло движение.

Фото выполненного объекта












