Умная квартира в Краснодаре
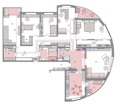
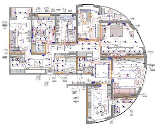
Представленный объект – квартира, площадью 221 кв. м расположена в Краснодаре. Электромонтажные работы были выполнены местными специалистами по проектной документации. Сборка щита автоматики была произведена на нашем производстве. Пусконаладочные работы были выполнены в два этапа.
- Группы света
- Климат-контроль
- Электрокарнизы
- Системы защиты от протечек
- Вытяжные вентиляторы
- Бесшовный Wi-Fi и локальная сеть
- Интеграция домофона и системы видеонаблюдения
Проектирование


Освещение
В проекте используется большое количество светильников, разбитые на 74 группы света. Большую часть освещения можно диммировать.
Трековые светильники, управляемые по протоколу Dali2
Led-ленты используемые как закарнизная и декоративная подсветка
А также встраиваемые светильники, управляемые через Умный дом.
Управление происходит с выключателей JUNG, с приложения «Дом» установленных на телефонах и двух iPad, а также голосового помощника «Алиса».
Организован мастер-выключатель, который отключает весь свет в квартире.
Климат-контроль
Единая системам климат-контроля объединяет в себе управление:
- Радиаторами;
- Теплыми полами;
- Кондиционерами;
- Системой вентиляции и увлажнения;
- Камеры наблюдения Hikvision.
Все вышеперечисленные системы работают как единый организм
Управление климат-контролем осуществляется с помощью приложения Умного дома. Также климат-контроль сильно задействован в сценарном управлении. А количество «родных» пультов удалось свести к минимуму.
Датчики
На данном объекте для полноценной автоматизации систем используется 10 универсальных датчиков различной комплектации. Такое количество датчиков позволяет нам собирать следующие данные
- Движение;
- Освещённость;
- Температуру;
- Влажность;
- Соотношение углекислого газа.
- Летучие органические соединения (VOC).
Интеграция домофона в умный дом
а именно:
- Получение Push-уведомления о звонке в домофон, с картинкой и звуком с домофона и возможность открыть дверь. Звук в одностороннем порядке, примеры работы домофона можно увидеть в видео.;
- интеграция телевизора в Homekit (подарок);
- Подключение светодиодной ленты (должны этим были заниматься мебельщики);
- Интеграция дверного звонка в Homekit;