
Умный радиатор



В любом Умном доме, отопление рассматривает в качестве одной из базовых функций, призванных обеспечить необходимый комфорт в помещениях в любое время года. В основе данного модуля лежит управление элементами отопления от датчиков температуры, размещенных в комнатах.
Для таких систем предусматривается наличие четырех вариантов рабочих схем:
- Ручное управление. Система поддерживает заданную температуру в нескольких режимах, например, комфорт (+23°) или сон (+19°). При необходимости температура каждого из режимов может быть откорректирована.
- Расписание. Предусмотрено формирование определенного расписания, в соответствии с которым автоматика будет осуществлять управление существующими режимами работы отопления.
- «Держать до». В этом режиме система будет функционировать в определенном режиме до достижения конкретного времени, после чего автоматически переключается в следующий режим.
- ЭКО минимум. В этом режиме умное отопление удерживает минимальную температуру, необходимую для обеспечения безопасности жилья, например, во время длительного отсутствия. На этот период в доме будет поддерживаться около +10 градусов.
Возможности управления системой:
- Приложение «Дом»
- Голосовой помощник Siri
- Сценарное управление
- Термостаты и терморегуляторы
Системные режимы отопления
- Сервисный. В этом случае управление отоплением «умный дом» переводится в состояние, необходимое для обслуживания оборудования. В частности, отключается автоматика термостата, позволяющая управлять термоклапаном в ручном режиме.
- Аварийный. В случае прекращения поступления на термостат адекватной информации с датчиков система автоматически переходит в аварийный режим. Перевод термоклапа в положение «открыто» или «закрыто» осуществляется в зависимости от выбранных настроек.
Владельцу необходимо только выбрать режим работы отопления и желаемую температуру, после чего автоматика будет все выполнять самостоятельно. При выходе из строя температурного датчика пользователю направляется уведомление, а отопление переводится в режим функционирования без сенсора. Кроме того, умная система отопления периодически открывает/закрывает термостатические клапана, чтобы исключить риск их закисания.
Функции системы
Автоматика
Безопасность
Мультимедиа
2-х этажная квартира в Санкт-Петербурге
ЖК «5 звезд» Умный дом Информация об объекте Монтаж системы проводился в двухуровневой квартире суммарной площадью 145 кв.метров. В ее основе лежат проводные решения WirenBoard и технология Z-wave. Большая часть…
KNX Умный дом в квартире
Умная квартира в ЖК «Новые Черемушки» Квартира в новостройке в Москве площадью 55 кв.м. Квартира оборудована системой KNX Умный дом, которая управляет всеми аспектами жизни в доме, от освещения до безопасности. Здесь…
Квартира 300м2
Умная квартира в ЖК «Лео мыс» Объектом стали апартаменты общей площадью 300 кв.метров, занимающие два этажа в ЖК «Леонтьевский мыс». В процессе выполнения работ был реализован проект «Умный дом» и…
Проект квартиры в Краснодаре
Умная квартира в Краснодаре Представленный объект – квартира, площадью 221 кв. м расположена в Краснодаре. Электромонтажные работы были выполнены местными специалистами по проектной документации. Сборка щита автоматики была произведена на…
Небольшая умная квартира
ЖК «Три ветра» К проектированию данной квартиры наша компания отнеслась с особым трепетом. Наша команда вложила сюда все свои силы и душу, благодаря чему результат превзошел все ожидания. Нам удалось…
Ленинский проспект Москва
Ленинский проспект Москва Объектом выполнения работ стала квартира общей площадью 96 кв. метров. Для нее было разработано уникальное решение на базе элементов Defaro по беспроводному протоколу Z-Wafe. Основная часть управления…
Мы предоставляем комплексную услугу и закрываем все потребности нашего клиента: проектирование
Жиркевич илья
Главный инженер
Интерфейсы системы


Подсоединение радиаторов
Разводка труб при подключении радиаторов может быть трех вариантов:
- последовательное соединение;
- присоединение к стояку (вертикальный);
- присоединение к центральному коллектору.
Принципы функционирования отопления
Система отопления для умного дома предусматривает автоматизацию процессов управления клапанами, ответственными за циркуляцию теплоносителя в контуре. Электроника сверяет фактическую температуру с заданными параметрами, открывая или перекрывая клапана.
При более низких значениях температур реле включается, открывая клапан, а при превышении значений отключается, перекрывая его. Механика управления строится на нормально открытых сервоприводах. Показатели погрешности используемых значений составляют всего 0,2 градуса в любую сторону, что позволяет с высокой точностью контролировать поддержание заданного температурного режима в помещениях.
Базовые компоненты системы
Блок управления
Такой модуль позволяет проводить управление по нескольким каналам (до 6(14) единиц), то есть для аналогичного количества помещений. Логика для каждого из датчиков выстраивается индивидуально, поэтому управление каждой из зон полностью независимо. Основой для получения входящей информации выступают сенсоры FS-V-TH-CO2-VOC.
Установка подобного модуля предусматривается в щиток на стандартную DIN-рейку.
Модуль для подключения датчиков
Модуль отвечает за считывание входных данных с температурных датчиков, трансформирует их в значения в градусах и передает их дальше посредством KNX-сети.
Датчик температуры
Стандартный по рабочим параметрам датчик с значениями B25=10k R/T=2904, B25/100=4300. Попытки интегрировать в отопление для умного дома датчики, обладающие иными характеристиками, приведет к формированию некорректных данных. Уровень сопротивления на датчики определяется температурой окружающего пространства. Подключение к модулям ввода прямое, вывод находится под рамкой выключателя и требует заблаговременно подготовить под него отверсти


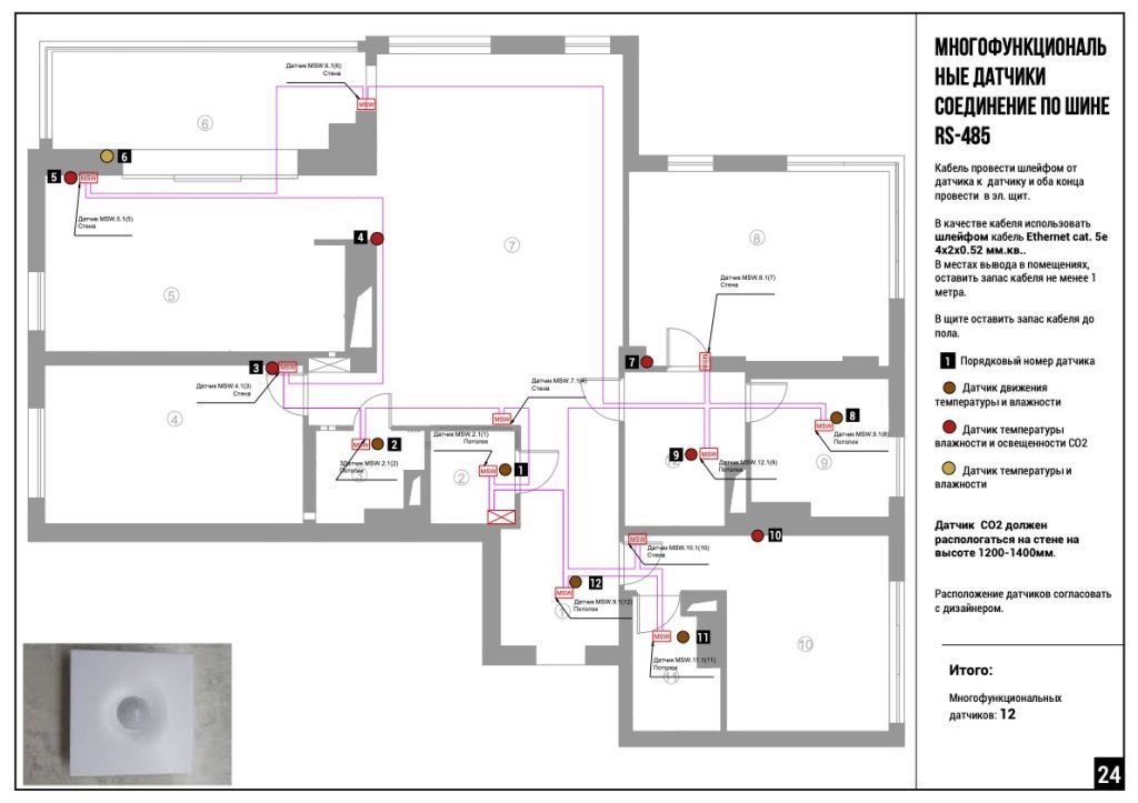
Многофункциональный датчик-регулятор качества воздуха Ekinex

Сенсор монтируется на стену и позволяет считывать различные параметры, включая температуру воздуха. Для передачи данных на термостат используется шина KNX. С его помощью можно отслеживать влажность воздуха и уровень содержания углекислого газа, качественные параметры воздуха в помещении. Таким образом, применение подобного мультисенсора обеспечивает комплексность контроля и возможность поддерживать оптимальный микроклимат в помещениях различного назначения.
Электрический сервопривод
Относится к числу нормально открытых, поэтому без электропитания он находится в положении «открыто», не препятствуя движению теплоносителя. При подаче электричества привод переходит в режим «закрыто», блокируя циркуляцию, и обеспечивая снижение температуры в помещении. В целом на рабочий цикл отводится в пределах 30-60 секунд, моментального закрытия/открытия не будет. О текущем положении привода сигнализирует индикатор, расположенный сверху. Подача питания осуществляется по кабелю МКШ 2х0,75 с укладкой в штробу. Реализация рабочих процессов достигается изменением объема парафина в термоприводе в результате его нагревания или остывания. Нагревательный элемепт привода электрический.
Монтаж предусматривает замыкание термопривода кольцом (размер М30х1,5), навинчиваемым на термостатический клапан. Подведение электрического кабеля требуется провести таким образом, чтобы обеспечить минимальную заметность, поэтому он должен иметь выход из стены как можно ближе к приводу. Проблемой в этом случае может стать отсутствие первоначальной информации о местах расположения радиаторов отопления. Целесообразно еще на этапе проектирования оговорить с сантехниками все детали, чтобы заранее подготовить места для вывода проводов. Проще ситуация, когда радиаторы уже смонтированы на объекте и требуется только подвести электропитание.
Термостатистический клапан
Система отопления умный дом предусматривает управление радиаторами через термостатические клапаны. На них сверху монтируется сервопривод, оставляющий в свободном положении входное отверстие для теплоносителя полностью открытым. Подача электроэнергии активирует привод, перекрывающий отверстие, и ограничивающий движение теплоносителя, происходит остывание радиатора.
Между собой клапаны могут иметь значительные различия, вызванные особенностями подведения к отоплению или конструкцией. В случае, если подведение к радиатору предусматривается от пола, клапан будет угловым. Прямые клапаны используются в случаях, когда соединение происходит вдоль вертикальных стен помещения. В случаях, когда подключение боковое, необходим несколько иной комплект элементов, включающий в себя не только клапан, но термостатическую головку. Необходимо учесть также факт заводской комплектации всех радиаторов отопления, предусматривающих подключение снизу, клапанными вкладышами.
Устраивая Умный дом, отопление должен проектировать специалист. Именно он может правильно подобрать термостатический клапан и провести его профессиональный монтаж. В первую очередь необходимо учесть, наиболее распространенным размером посадочного места на оборудовании, используемом в России, является М30х1,5.
