Квартира в ЖК «Лахта Плаза»
Квартира в новостройке на Приморском шоссе в Санкт-Петербурге площадью 156 кв.м.
Эта квартира оборудована системой Умный дом, которая управляет всеми аспектами жизни в доме, от освещения до безопасности. Система собрана на оборудовании производителя WirenBoard, что гарантирует высокое качество управления, комфорта и безопасности в доме.
Установленные системы:
- Освещение
- Климат контроль
- Элеткрокарнизы
- Датчики
- Система защиты от протечек
- Wi-Fi и локальная сеть
Цена системы под ключ 2,032,044 ₽
АВТОМАТИКА + ЭЛЕТКРИКА
₽ 581 000
- Клеммы — 36 000
- Умный дом — 246 046
- Силовая часть — 140 558
- Щит в сборе — 158 025
ПЕРИФЕРИЯ
₽ 735 714
- Сетевое оборудование — 44 153
- Выключатели — 163 540
- Розетки — 196 711
- Электрокарнизы — 331 310
РАБОТЫ
₽ 715 330
- Проектирование — 114 000
- Сборка щита — 135 600
- Монтажные работы — 214 230
- Пусконаладка — 251 500
О квартире

12 помещений
- Прихожая
- Постирочная
- Душевая
- Детская 1
- Кухня
- Балкон
- Гостиная
- Мастер-спальня
- Ванная 2
- Детская 2
- Душевая 2
- Сауна
Что автоматизировали
Освещение
- Led лент(треков) — 9
- Закарнизные Led ленты — 9
- Группы светильников — 9
- Бра — 2
- Групп выключателей̆ — 17
- Клавиш выключателей̆ — 44
Климат
- Теплые полы — 8
- Группы радиаторов — 4
- Канальный кондиционер — 1
- Вытяжных вентиляторов — 5
Автоматика
- Электрокарнизы — 5
- Римские шторы — 2
- Универсальные датчики — 12
- Герконы — 7
Безопасность
- Система домофонии — 1
- Защита от протечек — 1
- Шаровых кранов — 2
Силовые нагрузки
- Эл. Полотенцесушителей — 3
- Групп розеток — 16
- Управление камином — 1
Компьютерная сеть и Wi-Fi
- Wi-Fi стандарта 802.11n
- Внутренняя компьютерная сеть 1Gb
- Бесшовный Wi-Fi роуминг
Проектирование
Спроектированы:
- Система управления освещением.
- Система климат-контроля
- Безопасность
- Электрокарнизы
- Слаботочная информационная система — компьютерная сеть, Wi-Fi, распределение телевизионного сигнала.
- Средства управления.
Разработали проект силовой электрики.
При проектировании, учли возможность будущего апгрейда системы.

Освещение
Световые зоны
- По всей квартире мы установили 29 световых зон.
- 18 из них диммируются.
Почти в каждом помещение установлены светодиодные ленты, меняющие яркость.
4 способа управления
Освещение управляется:
- В автоматическом режиме благодаря датчикам движения и освещенности.
- С помощью iPad.
- Обычных выключателей.
- Голосовым помощником Siri и Алиса
Разработали световые сценарии.
- Предусмотрели диммирование света в нужных местах.
- Настроили плавное включение/выключение света.
- Установили автоматизированное управление светильниками во всей квартире.
- Настроили режимы день/ночь. Днем свет включается на 100% c наступлением сумерек и ночи яркость основных источников света падает до 40%
Cценарии
Создали совмещенные сценарии «Свет + Шторы».
Предусмотрели создание комбинированных сценариев (Свет + Шторы)
Установили датчики освещенности для световых сценариев.
Датчик освещенности определяет время суток и включает нужный сценарий.8
В проходных зонах настроено автоматическое включение света с датчиков движения
Реализовали «Ночной» режим – загорается свет низкой яркости, чтобы не ослеплять хозяев ночью.
Выключатели и розетки
На объекте установлены выключатели Jung LS990 — это стильные и функциональные устройства, которые идеально подходят для системы Умный дом.
Это импульсные выключатели, способные управлять не только на включение и выключение, а также диммированием и переключением режимов и сцен.
Силовые и слаботочные розетки идут их этой же серии.
Выключатели Jung LS990 — это надежные и стильные устройства, которые позволяют управлять всеми устройствами в доме.
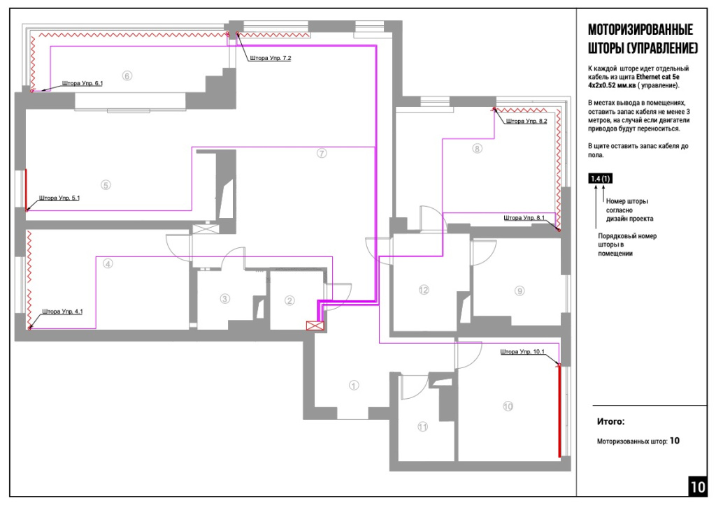
Шторы
9 моторизованных штор
Для регулировки дневного света на окнах поставили 9 моторизованных штор управляемых по протоколу rs-485
Данный интерфейс позволяет организовать корректную работы шторы с возможностью получения обратной связи.
Установили моторизованные шторы на всех окнах в квартире.
Типы штор:
- Раздвижные
- Римские
Разработали сценарии, в которых шторы срабатывают совместно со светильниками.
Настроили открытие / закрытие штор по сигналу от датчика освещенности.
Климат-контроль
Температура
В комнатах можно регулировать температуру.
Кондиционер
Подключили к системе «Умный дом» управление кондиционером.
Вытяжка в ванной и сауне
Вытяжка в ванной и сауне включается:
⠂ По датчику влажности в составе сценария.
⠂ Вручную с настенной панели.

Сауна
Сауну можно включить:
- Вручную с настенной панели;
- Удаленно с iPad.
«Умный дом» согласовывает работу всех климатических систем друг с другом.
В каждой комнате можно настроить свою температуру и климат.
Система сама решает, как сильно нагревать или охлаждать помещение, и с помощью каких систем поддерживать нужную температуру.
Владельцу достаточно выставить нужную температуру для конкретного помещения.
Настроили 3 режима работы теплых полов:
- «Постоянный»: просто регулирование.
- «Ежедневный»: регулирование в определённое время.
- «Еженедельный»: регулирование в определённое время по дням.
Климат управляется с помощью:
- Голосом
- iPad
- Телефонов
Силовые нагрузки
- Выключить все
Установили автоматическое отключение силовых нагрузок:
- Утюга.
- Плиты.
- Стиральной машины.
- Посудомоечной машины.
Камин
Управление камином:
- Включение.
- Отключение.
- Регулировка пламени.
Компьютерная сеть и Wi-Fi
- Покрыли всю квартиру Wi-Fi стандарта 802.11n.
- Настроили внутреннюю компьютерную сеть 1Gb.
- Настроили бесшовный Wi-Fi роуминг — теперь при перемещении по квартире сигнал не прерывается, а устройство само подключается к нужной Wi-Fi сети.
Сценарии
Настроили создание пользовательских сценариев. То есть заказчик может сам создавать сценарии управления:
- Определять какие светильники включатся.
- Какие шторы откроются.
- Какая нагрузка включится.
В каждой комнате настроен гибкий сценарий «Выключить всё»
Фото выполненного объекта










